HOTEL DE MONTAÑA EN PIEDRAFITA DE JACA


Tomando como fuente de inspiración la arquitectura tradicional pirenaica, se utilizan sus materiales y técnicas constructivas  para dar forma a un programa residencial  directamente relacionado con la nieve y la alta montaña.

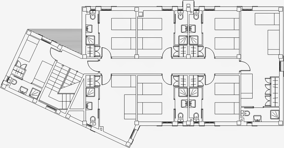
Adaptándose al perímetro ajustado y en pendiente de la parcela se plantea la articulación de dos volúmenes, que se maclan mediante un quiebro en la composición. El programa incluye habitaciones de distinto formato en las plantas superiores y bar-restaurante en la planta baja.

Se utiliza piedra, pizarra y madera, como materiales propios de la zona, con la idea de integrar la edificación en la interesante arquitectura de Piedrafita y en la nueva urbanización donde se ubica.

Planta Primera

Sección

Promotor privado (1998).